Description
Quick Overview of Apex Park Square
Apex Park Square is an affordable commercial development situated in Greater Noida West. Prices for flats in this project start at INR 41.7 Lac. This is your chance to elevate your business perspective and embrace a new business hub. Apex Park Square b...
Quick Overview of Apex Park Square
Apex Park Square is an affordable commercial development situated in Greater Noida West. Prices for flats in this project start at INR 41.7 Lac. This is your chance to elevate your business perspective and embrace a new business hub. Apex Park Square blends modern amenities with lush greenery, creating an ideal environment for businesses. Developed by a renowned industry leader, this project promises high-quality commercial spaces and includes a three-year lease guarantee. The G+3 central mall design offers attractive commercial spaces and amenities that support and energize your business goals.
About Apex Park Square
Located strategically in Noida Extension, Greater Noida, Apex Park Square is a well-planned project spanning 2 acres. It offers a variety of units priced between Rs. 20.4 Lac and 1.49 Cr. The development includes 287 units constructed to high standards.
The commercial property is designed to meet modern business needs and is ideal for various types of enterprises. Available units include spacious commercial shops ranging from 80 sq. ft. to 710 sq. ft. The project is organized into a single tower, with a launch date of May 1, 2018, and possession available from July 1, 2021.
Developed by the esteemed Floral Realcon and Viable Ventures, Apex Park Square features amenities such as a private terrace/garden, cafeteria/food court, lift, banquet hall, conference room, bar/lounge, internet/Wi-Fi connectivity, DTH television facility, RO water system, and power backup. The property is located at Sector-16 B, Greater Noida, Delhi/NCR, with the pin code 201009, ensuring a comfortable living experience with all modern conveniences.
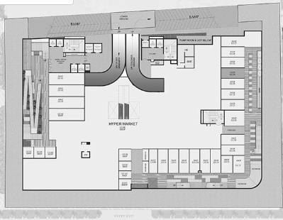
Apex Park Square Floor Plan
Explore the floor plans of Apex Park Square to understand the space, layout, and room sizes. The project offers commercial shops in various sizes: 80, 115, 150, 175, 185, 200, 220, 250, 290, 315, 360, 410, 450, 490, 515, 550, 610, 630, 670, and 710 sq. ft. Each unit includes well-appointed bathrooms and balconies with views. For detailed layouts, visit TownManor.
Apex Park Square Address
Apex Park Square is located at Sector-16 B, Greater Noida, Delhi/NCR, 201009.
Apex Park Square Price List
| Price | Shop Area |
|---|---|
| ₹27.6 Lac | 115 Sqft |
| ₹55 Lac | 220 Sqft |
| ₹1.34 Cr | 610 Sqft |
Energy efficient & Gas emissions
Detail
-
Property Type:
Commercial Office -
Construction Status:
Ready-to-move -
RERA ID:
UPRERAPRJ16178, UPRERAPRM5534 -
County:
India -
City:
Greater Noida -
Pin code:
201301 -
Built-up Area:
115 - 610 sq.ft -
Sale price:
₹ 27.6 L - 1.34 Cr
Amenities
Distances
-
7.3 km
Metro: -
1.5 km
Healthcare: -
0.7 km
Restaurant: -
1.3 km
School: -
0.9 km
Mall: -
2.1 km
Cinemas: -
1.3 km
Park:
Floor Plans

Reviews
No reviews found, be the first!
Write a Review
Please login or register to write your review